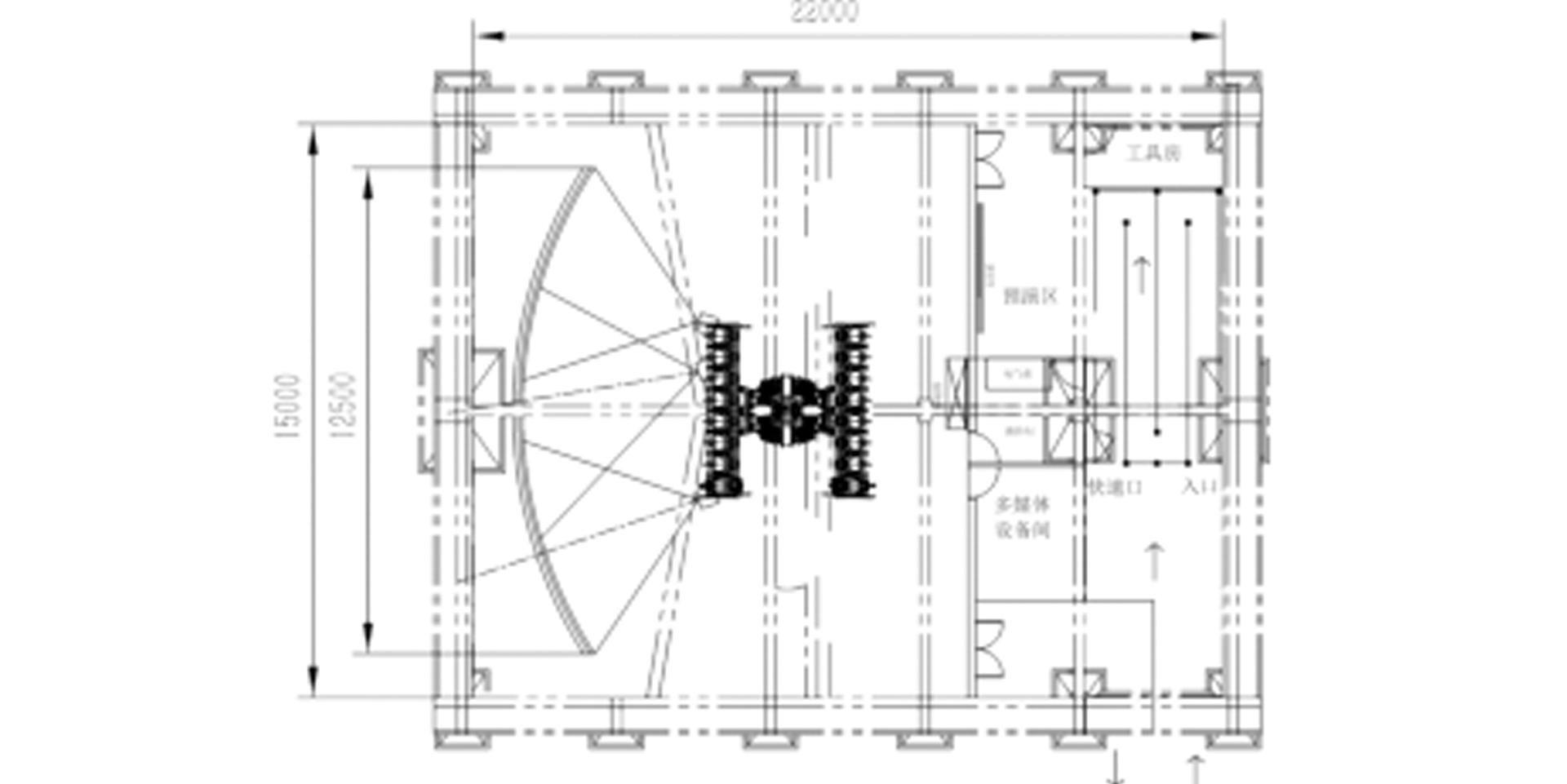
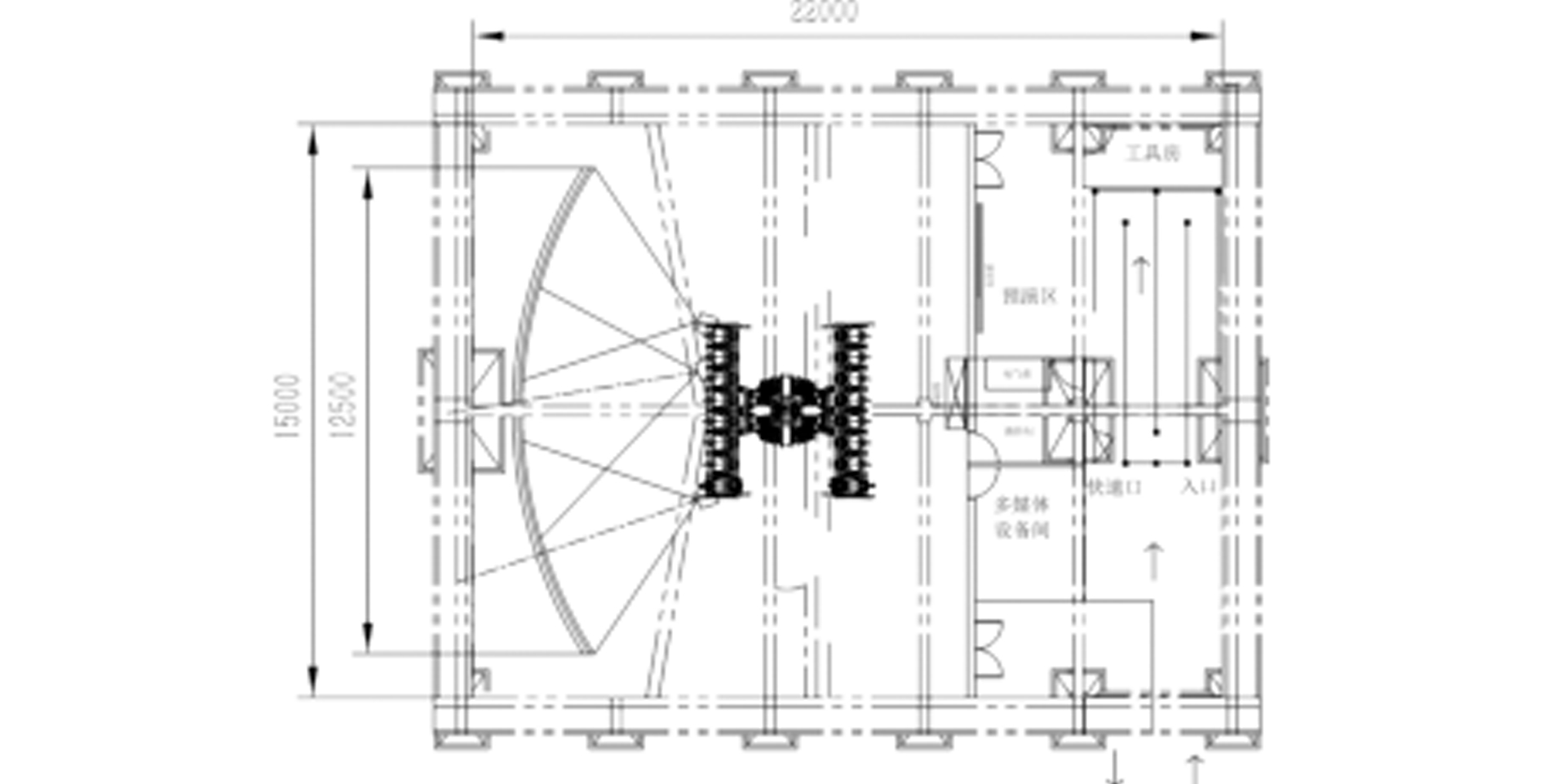
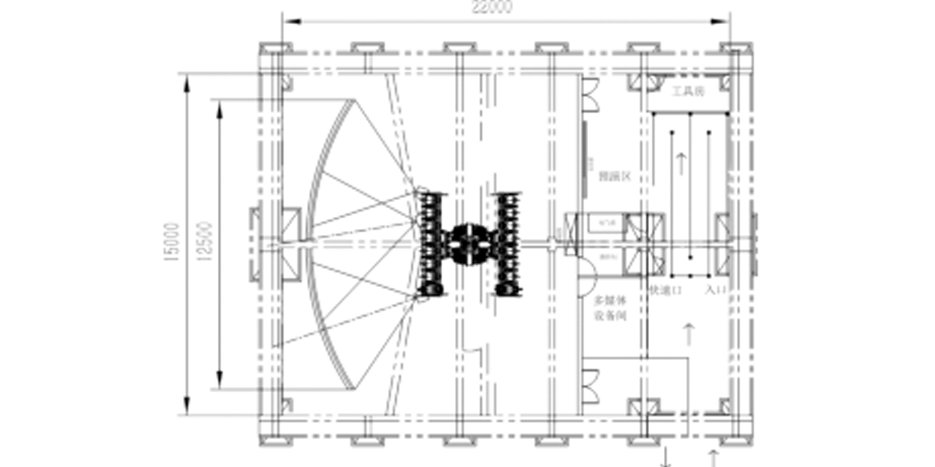
单平台载客:42人
设备外观尺寸:10000mm(长)×9000mm(宽)×11000mm(高)
设备质量(单台):≤65t
旋转速度:7.15r/min
旋转角度:±180°
乘座人数:16人
旋转速度:7.15r/min
旋转角度:±180°
乘座人数:16人
旋转速度:7.15r/min
旋转角度:±180°
乘座人数:8人
单座舱载客:8人/座舱
整车尺寸:2950mm(长)×5600mm(宽)×6516mm(高)
设备功率:20kW